防渗膜卷膜套管连接装置及其连接方法
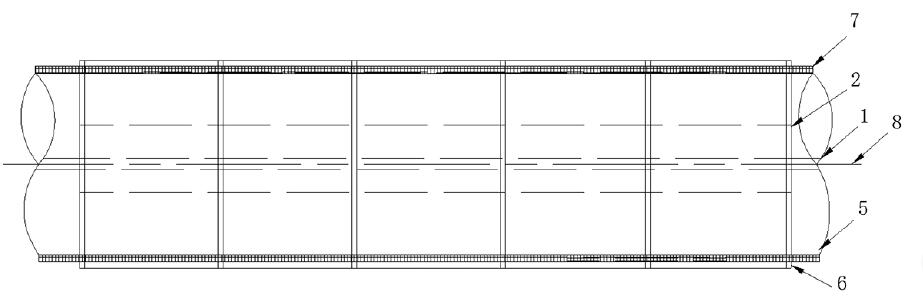
为了解决当下工程建设中防渗膜连接方式的弊端,探讨如何加强连接部位的抗拉强度和防渗性能,本工程所用防渗膜采用了卷膜套管连接装置。由图1和图2可知,建筑基础防渗膜卷膜套管连接装置由内管5和外管6组成,内管5的管壁上沿纵向设有插口1,外管6的管壁上沿纵向设有卡口2,通过外管6将卷裹在内管5外侧的防渗膜卷层7套住并卡紧。内管5上的插口1的开口宽度与卷头8的两膜厚度一致,卡口2的宽度不宜设置较宽,通常为1cm~2cm。防渗膜卷层7的厚度与内外管之间的环隙一致,以保证密实牢固。内管5的材质可选择金属管材(钢管、铝管等)或硬质PPR管材(PPR
热水管、冷水管、铝塑管等)。本工程考虑经济实用性,内管5选用了PPR热水管,外管6为PPR冷水管。


清理防渗膜两膜连接部位,去除接缝范围内膜上水泥浆、砂粒、泥土和污垢等,保证膜面清洁无尘土;对防渗膜一和防渗膜二的连接部位清理并检查合格后,将两膜连接边3和4进行贴合、对齐,形成卷头8;将卷头8,即需要连接的两膜中3和4的连接边,从内管5上插口1的一端共同插入内管5中,然后连同两膜一起卷动内管5,紧卷一圈或多圈,使两膜中3和4卷裹于内管5外侧形成防渗膜卷层7;通过外管6上的卡口2将内管5及卷裹于其外侧的防渗膜卷层7一起套住,继续旋紧防渗膜卷层7,以填充密实内管5和外管6之间的环空间隙,使两部分防渗膜的3和4紧密地连接在一起;
上述4个步骤完成后即完成了一段新新膜或新旧膜之间的连接,重复上述步骤,逐段对两防渗膜进行连接,连接时应使相邻两段内管之间及外管之间逐一靠紧,防止分段部位出现薄弱点而造成渗漏通道。两部分防渗膜连接完成后,将其连接部分布设于预留膜下砂浆槽中,然后进行膜上砂浆铺设和混凝土预制板的衬砌,彻底解决连接部位抗拉强度不足易渗漏的问题。膜上砂浆铺设时应布满预留坑槽。
同类文章排行
- 防渗国内精品久久久久久久影视麻豆膜铺设全流程解析!5 步避开 90% 工程隐患,防水效果提升 3 倍
- 影响复合国内精品久久久久久久影视麻豆膜材料耐久性的主要因素有哪些?
- 如何加强渠道防渗工程的质量管理以HDPE国内精品久久久久久久影视麻豆膜为例
- 蓄水池防渗中,塑料类和复合国内精品久久久久久久影视麻豆膜均有应用
- 复合国内精品久久久久久久影视麻豆膜在渠道防渗节水改造中的应用
- 渠道中应用国内精品久久久久久久影视麻豆膜连接的质量控制要点
- 公路工程中国内精品久久久久久久影视麻豆布的物理特性有哪些?
- 鱼塘养殖国内精品久久久久久久影视麻豆膜施工经验介绍
- 国内精品久久久久久久影视麻豆膜轧花成糙法和化学发泡成糙方法有什么区别
- 胶接法施工国内精品久久久久久久影视麻豆膜的水力性能变化及胶接法拼接要求
最新资讯文章
- 复合国内精品久久久久久久影视麻豆膜施工前,这 3 大质量关卡必须过
- 从阻隔渗透到抗老化,复合国内精品久久久久久久影视麻豆膜如何破解复杂环境施工难题?
- 国内精品久久久久久久影视麻豆膜铺设的隐藏技巧:如何避免90%的漏水隐患?
- 基层处理+防渗毯铺设:打造顶级防渗效果的秘诀!
- 垂直 vs 水平!水池防渗方案终极对决,答案让人大跌眼镜
- 麻豆视频APP在线下载施工前必看:基层检查、环境评估、材料准备攻略!
- 会呼吸的防水材料!麻豆视频APP在线下载的智能自修复机制大揭秘
- HDPE如何攻占高端制造市场?
- HDPE国内精品久久久久久久影视麻豆膜:化工、石化、油田领域的“全能防护盾”
- 暴雨季施工必备:高温环境防渗膜焊接安全操作手





首页
电话
QQ
联系